Een groot deel van onze woningen is geen echte sociale woningbouw. Continu is er wel iemand die zoiets zegt. Deze week was het maar liefst twee keer raak.
Zo meldde een slimme wetenschapper op Twitter dat de bouw van ‘echte sociale woningbouw’ achterblijft omdat er in 2019 in Amsterdam vooral voor jongeren en studenten wordt gebouwd.
Kort daarvoor verwoordde een gewaardeerd corporatiebestuurder het nog wat onthutsender: jullie bouwen geen woningen maar voor studenten. Bouwen voor studenten moest ik echt niet vergelijken met de woningbouwproductie van zijn corporatie.
Eigenlijk ben ik stomverbaasd. Volgens mij is ‘echte sociale woningbouw’ een betaalbare woning voor mensen met een lager inkomen. Zo is dat ook vastgelegd in de Woningwet en in Amsterdamse samenwerkingsafspraken tussen de huurdersorganisaties, corporaties en gemeente. Bij het tellen van het aantal sociale huurwoningen in de stad wordt geen onderscheid gemaakt tussen woningen voor jongeren of ouderen, voor leraren of studenten. Want in Amsterdam investeren we in alle soorten bewoners.
Architectuur
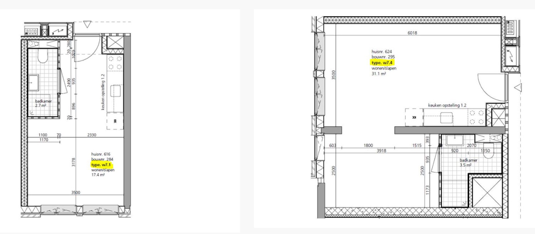
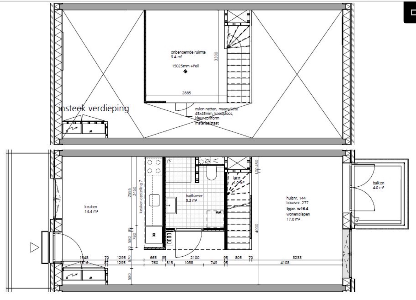
De Key bouwt jaarlijks zo’n duizend woningen voor jongeren en studenten. Dat zijn woningen waar we trots op zijn. Met mooie architectuur en gevarieerde plattegronden. Voor mensen die daar dolgraag willen wonen. Voor de nieuwsgierigen hieronder een greep uit de plattegronden van Lieven. Dat maakt het begrijpelijk dat De Key er trots op is om te bouwen voor studenten en jongeren. Dit is echte sociale woningbouw!




